Close
For More Inquiry
905-251-1117
$699,000.00 CAD For Sale

EMPIRE AVALON FREEHOLD TOWNHOUSE (3 BEDS & 3 BATHS) in CALEDONIA!

Description

-

Assignment Summary
  • 501
    Assignment Id
  • -
    Country
  • 772880
    Original Price (CAD)
  • -
    Development/Levy Charges
  • -
    # of Dens
  • Included
    Parking
  • -
    No of Locker Units
  • Townhouse
    Type
  • Haldimand County
    City
  • 70900
    Original Deposit (CAD)
  • 1400-1799
    Approximate Size (SqFt)
  • 3
    # of Washrooms
  • Attached
    Parking Type
  • 2024-06-15
    Occupancy Date
  • Assignment Sale
    Status
  • Ontario
    State / Provice
  • 699,000.00 CAD
    List Price (CAD)
  • Exposure
  • -
    Media Room/Study?
  • 1
    # of Parking Spots
  • -
    Upgrade Charges
  • 2 Storey
    Style
  • -
    Postal Code / Zip
  • 2
    Cooperating Commission %
  • 3
    # of Bedrooms
  • Open
    Balcony
  • Not Included
    Locker
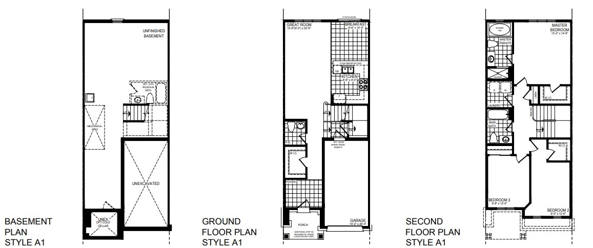
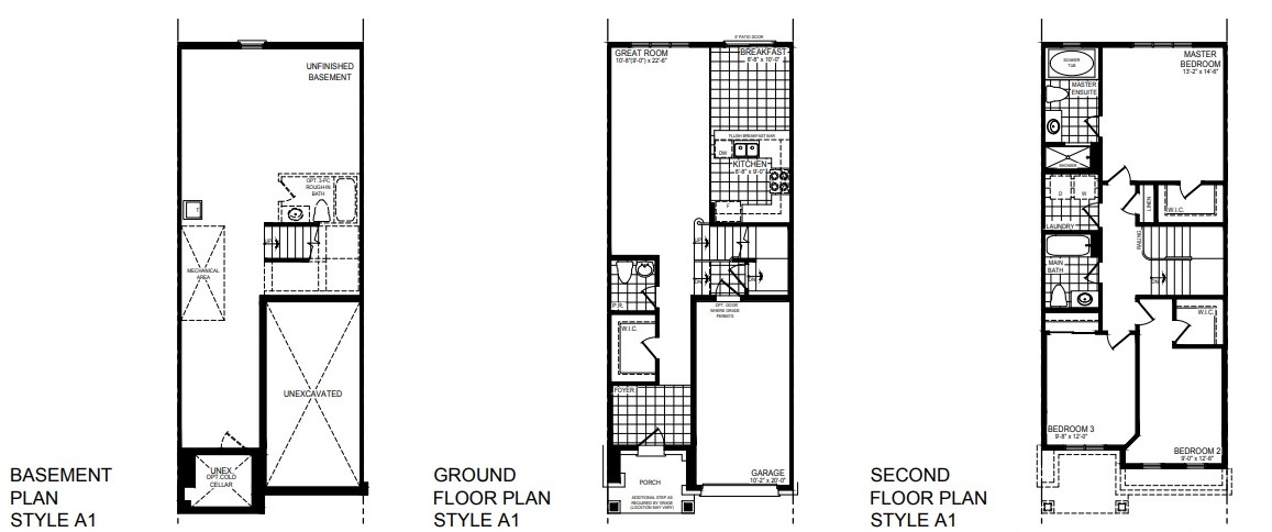
Floor Plans
Support Member
Assignaway.com
Make an Offer

Discover an opportunity to submit your offer on this exceptional property. Impeccable decor, contemporary lighting fixtures, and premium finishes await your consideration.