Close
For More Inquiry
905-251-1117
$739,000.00 CAD For Sale

8HAUS CONDOS (2 BEDS & 2 BATHS) in TORONTO!

Description

-

Assignment Summary
  • 475
    Assignment Id
  • -
    Country
  • 819000
    Original Price (CAD)
  • -
    Development/Levy Charges
  • -
    # of Dens
  • Included
    Parking
  • -
    No of Locker Units
  • Condominium
    Type
  • Toronto
    City
  • 120500
    Original Deposit (CAD)
  • 700-999
    Approximate Size (SqFt)
  • 2
    # of Washrooms
  • None
    Parking Type
  • 2024-02-27
    Occupancy Date
  • Assignment Sale
    Status
  • -
    State / Provice
  • 739,000.00 CAD
    List Price (CAD)
  • South
    Exposure
  • -
    Media Room/Study?
  • 1
    # of Parking Spots
  • -
    Upgrade Charges
  • Apartment
    Style
  • -
    Postal Code / Zip
  • 2
    Cooperating Commission %
  • 2
    # of Bedrooms
  • Open
    Balcony
  • Included
    Locker
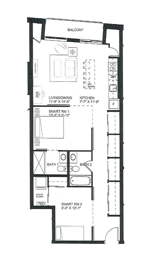
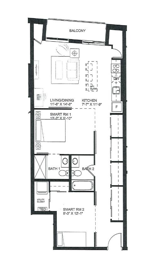
Floor Plans
Support Member
Assignaway.com
Make an Offer

Discover an opportunity to submit your offer on this exceptional property. Impeccable decor, contemporary lighting fixtures, and premium finishes await your consideration.